Ministro brin al 2824
- USD $300,200
- USD $300,200
Vista general
- Departamento
- 3
- 3
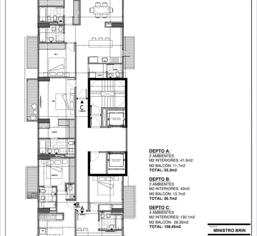
- 158.45 M2
Descripción
VENTA DEPARTAMENTO 4 AMBIENTES 158M2
***Torre Ministro Brin***
Única unidad con excelente distribución y amplios ambientes.
Características Principales de la Unidad:
*Cocina completa con muebles bajo mesada y alacenas, carpintería de primera calidad, cajones con sistema “Cierre Suave”, horno empotrado y artefacto de cocina a gas, mesadas de mármol estilo “Negro Boreal”.
* Tres amplias habitaciones, todas con sus respectivos armarios empotrados, la principal con baño en suite.
*Dos baños completos, totalmente revestidos con porcelanato, griferías FV, sanitarios Ferrum.
*Pisos de Porcelanato en todos los ambientes.
*Calefacción por radiadores.
* Amplios balcones terrazas, con barandas de acero y vidrios blindex.
La Torre Ministro Brin 2824 redefine el concepto de vivienda en altura con sus 22 pisos de diseño moderno, desarrollados sobre un terreno de 1500 m², de los cuales 1250 m² están destinados a espacios comunes y áreas verdes. Esta configuración única en la zona permite disfrutar de amplias zonas de esparcimiento, ideales para compartir en familia o con amigos.
La torre ofrece un entorno privilegiado, con un diseño de perímetro libre que asegura iluminación y ventilación natural en cada unidad, y un sky mirador en el piso 22 que brinda vistas panorámicas impresionantes de la ciudad. Los detalles constructivos y de terminación fueron pensados para ofrecer funcionalidad, estética y confort, combinando modernidad con calidad de vida.
Los amenities completan una experiencia única: SUM, salón de fiestas, gimnasio, espacios de juegos para niños, un deck solárium y una espectacular piscina climatizada in/out de 16 metros de largo. Todo rodeado de un entorno natural que invita al descanso y al disfrute cotidiano.
Te invitamos a conocer todos nuestros emprendimientos en zona sur y CABA.
Descripción del emprendimiento
TORRE EXCLUSIVA DE 22 PISOS EN EL CENTRO DE LANUS OESTE.
Esta torre representa una oportunidad única para aquellos que buscan una vida de lujo, comodidad y conexión con su entorno, todo en el corazón del centro de Lanús.
*SUM *SALON DE FIESTAS *GIMNASIO * PISCINA CLIMATIZADA
***Tu estilo de vida elevado***
En el corazón del polo gastronómico “Lanusita”, emplazado en la calle Ministro Brin, entre Lavallol y Aristóbulo del Valle.
UNIDADES DISPONIBLES:
* Monoambientes 36m2
* Dos ambientes desde 60m2
* Tres ambientes desde 104m2
* Cuatro ambientes desde 123M2
* Exclusivo Piso de 275m2.
Diseñada con un innovador concepto de perímetro libre que garantiza óptima iluminación y ventilación en todos los ambientes, creando espacios llenos de luz y bienestar. En el piso 22 se encuentra un exclusivo sky mirador, que ofrece vistas panorámicas incomparables, invitándote a disfrutar de momentos únicos en un entorno de modernidad y confort.
El edificio cuenta con amplias zonas de esparcimiento que abarcan 1250 m² en un terreno de 1500 m², ideales para el descanso y la convivencia. La imponente entrada se realza con un hall de doble altura que marca la diferencia en términos de elegancia y amplitud. Además, para disfrutar durante todo el año, dispone de una piscina in/out climatizada, perfecta para momentos de relax y esparcimiento.
Detalles Interiores de las Unidades
Cada unidad ha sido diseñada pensando en la funcionalidad y el estilo. Las cocinas completas se equipan con muebles bajo mesada y alacenas, complementadas por mesadas de mármol en estilo “negro boreal” y equipadas con horno de la reconocida marca Horbis. Las aberturas, en línea Modena, combinadas con vidrios DVH, aseguran una excelente eficiencia energética y aislamiento acústico. Los balcones, con barandas de acero y vidrios blindex, añaden un toque de seguridad y modernidad.
Los ambientes se distinguen por sus pisos de porcelanato en todas las áreas y las puertas modelo Plac Full línea A, que aportan distinción y calidad. Los baños, totalmente revestidos, lucen sanitarios de la marca Ferrum y griferías FV, consolidando un alto estándar en acabados y confort.
Construye AG Servicios SRL
Comercializa AG Negocios Inmobiliarios.
Actualizado el día: 2026-05-26 12:02:36
Dirección
-
Dirección: Ministro Brin 2824
-
Ciudad: Lanús, Lanús Oeste
-
Provincia: G.B.A. Zona Sur
-
Área: Lanús
-
País: argentina
Detalles
Updated on May 26, 2026 at 9:02 am-
ID de propiedad 7343336
-
Precio USD $300,200
-
Tamaño de la propiedad 130.10 M2
-
Dimensiones del terreno 158.45 M2
-
Dormitorios 3
-
Habitaciones 4
-
Baños 3
-
Tipo de propiedad Departamento
-
Estado de la propiedad Venta
Destacados
- Accesibilidad C/ Movilidad Reducida
- Agua Corriente
- Agua Potable
- Amenities
- Apto mascotas
- Apto profesional
- Armarios Empotrados
- Ascensor
- Balcón
- Balcón terraza
- Biblioteca
- Cable
- Caldera
- Calefacción
- Calefacción F/C
- Calefacción por gas
- Carpintería de aluminio
- Categoría
- Cloaca
- Cocina
- Comedor diario
- Condominio
- Deck
- Detector de Incendios
- Doble Acristalamiento
- Edificio/Zona
- Electricidad
- En construcción
- Encargado
- Escritorio
- Espacio para lectura
- Estilo Moderno
- Gas Natural
- Generador
- Gimnasio
- Grupo electrógeno
- Guarda de seguridad
- Instalación eléctrica subterránea.
- Internet
- Living comedor
- Losa radiante general
- Luminoso
- Parrilla
- Parrilla techada
- Patio de juegos
- Pavimento
- Picos de gas
- Pileta
- Pileta climatizada
- Pileta Comunitaria
- Pileta Cubierta
- Pileta descubierta
- Portón Corredizo
- Portón Levadizo
- Portones eléctricos
- Potencial alto para alquilar
- Preinstalación de aire acondicionado
- Quincho
- Recepción 24 Horas
- Red de desagües pluviales
- Sala de juegos
- Seguridad
- Seguridad 24Hs
- Seguridad nocturna
- Seguridad Porteria
- Seguridad Privada
- Solarium
- Suelo Radiante
- SUM
- Telefono
- Terraza
- TV Cable en el edificio
- TV por Satélite
- Ubicación tranquila
- Ventanas de aluminio
- Ventanas doble acristalamiento
- WiFi
- Zona de parrillas
- Zonas Verdes






