BERNARDO DE IRIGOYEN 1142, San Telmo. CABA
  • USD $79,900

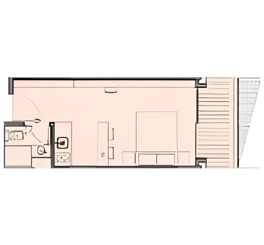
Vista general

ID de propiedad: 7190358
  • Departamento
  • Tipo de propiedad
  • 1
  • Baño
  • 30.00 M2
  • Dimensiones del terreno

Descripción

La unidad 1004 es un moderno monoambiente de 30 m², parte de PEOPLE, un desarrollo innovador actualmente en construcción, diseñado para el nuevo estilo de alquiler urbano: flexible, amoblado y de alta rentabilidad.

Ubicado en Bernardo de Irigoyen al 1100, a pasos de subtes, colectivos, universidades y zonas clave de la ciudad.

Obra en marcha – invertí con respaldo y visualizá el avance real del proyecto.

Ideal para renta temporaria, nómades digitales o estudiantes.

Rentabilidad estimada muy superior al alquiler tradicional, con contratos cortos, alta demanda y gestión profesional.

Amenities destacados:

• Rooftop con vista panorámica
• Skybar y coworking
• Gimnasio
• Laundry
• Jardín interno

¿Por qué invertir en PEOPLE?

* Modelo probado, simple y rentable
* Máxima rentabilidad sin ocuparte de nada
* Gestión 100% profesional
* Propiedad asegurada y transferible
* Alta demanda de alquiler temporario todo el año

Tenés la oportunidad de ser parte de un proyecto que redefine la inversión en real estate.
Consulta hoy por tu unidad soñada

Actualizado el día: 2026-02-10 15:43:54

Dirección

  • Ciudad: San Telmo
  • Provincia: Capital Federal
  • País: argentina

Detalles

Updated on February 10, 2026 at 12:43 pm
  • ID de propiedad 7190358
  • Precio USD $79,900
  • Tamaño de la propiedad 30.00 M2
  • Dimensiones del terreno 30.00 M2
  • Habitación 1
  • Baño 1
  • Tipo de propiedad Departamento
  • Estado de la propiedad Venta

Información de contacto

Ver listados

Consultar por esta propiedad