Dorrego al 1500
- USD $128,411
- USD $128,411
Vista general
- Departamento
- 1
- 38.80 M2
Descripción
Venta Monoambiente 34M2
PISO 3 UNIDAD 308
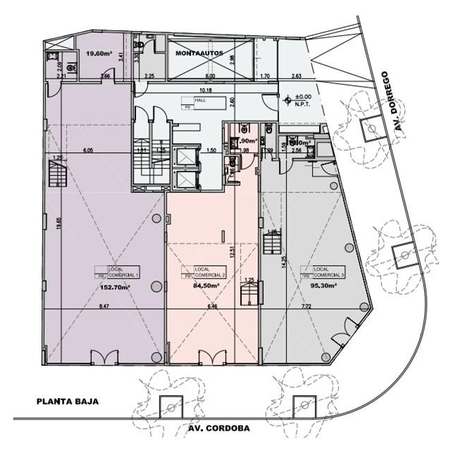
“LIVE IN DORREGO” es un proyecto que se ubica en la esquina de Av Dorrego y Av Córdoba, donde confluyen los barrios de Palermo, Colegiales y Chacarita. En pleno distrito audiovisual y con multiplicidad de propuestas comerciales, culturales y gastronómicas. Con ingreso por Av Dorrego, tendrá unidades de 1-2-3 y 4 ambientes, distribuidas en 9 pisos, 2 niveles de amenities (piscina, SUM, gimnasio, solarium y terraza verde) en los pisos 9 y 10, dos niveles de cocheras en subsuelo y locales comerciales en PB sobre ambas avenidas. APTO PROFESIONAL.
¡FINANCIAMIENTO!!
Características Generales:
El Edificio, de estilo contemporáneo en situación de esquina, cuenta con un importante Hall de acceso previsto con cámaras de seguridad y locales comerciales en Planta baja.
Las cocheras se distribuyen en dos niveles de SS con acceso mediante monta autos.
Las plantas contienen unidades de 1, 2, 3 y 4 ambientes con balcones hacia el frente.
Palieres con 2 ascensores.
Amenities en Piso 9:
Salón de usos múltiples, Gimnasio, terraza y sector de parrilla. Piscina y solárium con azotea verde en piso 10. Grupo electrógeno para Servicios Generales.
Características técnicas:
Paramentos Interiores y exteriores: Mampostería tradicional de ladrillos huecos.
Revestimientos: Pisos Paliers, cocinas y baños y revestimientos pared baños: Porcelanato
Hall de acceso: Mármol / Porcelanato.
Unidades (Estar comedor y dormitorios): Pisos símil madera vinílicos (Patagonia Flooring), zócalos de madera blancos.
Escalera de incendio: Alisado de cemento con narices metálicas terminación pintura color.
Balcones: Porcelanato
Terrazas: Deck símil madera PVC.
Instalaciones Sanitaria:
Agua fría y caliente central en materiales de primera calidad.
Artefactos sanitarios FERRUM o similar y griterías de pared o mesada F.V. o similar.
Bachas de losa blanca de apoyar o embutir según el diseño a definir.
Eléctricas:
Teléfono y Canalización para Video.
Portero Visor color.
Conexión para Aire Acondicionado en todos los ambientes principales.
Calefacción:
Por piso radiante eléctrico con regulación diferenciada por ambiente.
Terminaciones
Interiores:
Paramentos y cielorrasos en yeso con buñas perimetrales.
Pintura al látex blanco en todos los ambientes.
Exteriores:
Pintura Látex Exterior (color a definir) / Hormigón visto.
Carpinterías
Exteriores:
De aluminio negro (opcional termo panel) Interiores:
Puertas mdf para pintar.
Frentes de placard: De paneles integrales en melanina, Interiores de placares y vestidores completos equipados.
Equipamiento fijo
Muebles bajo mesada y alacenas diseñadas a medida. Horno y anafe separados de acero inoxidable eléctricos.
Mesadas y alzada de 30 cm en Granito negro Brasil o similar en cocinas con bachas de acero inoxidable y mesadas de mármol en baños y toilette.
Espejos y accesorios en baños y toilettes.
Herrajes platil de categoría.
Tenemos disponibilidad de otras unidades
Construye junto a INARCH + AG SERVICIOS SRL
CONSTRUCTORA & NEGOCIOS INMOBILIARIOS
*Nota: Dichas características podrán variar de acuerdo a la disponibilidad de mercado, respetando las características de diseño.
Descripción del emprendimiento
Venta PROYECTO “DORREGO IN LIVE”
El Edificio se emplaza en un PUNTO ESTRATÉGICO de la ciudad, donde intersectan las Avenidas Córdoba y Dorrego, en donde además comulgan los clásicos barrios de Palermo, Colegiales y Chacarita.
Zona en constante crecimiento, con diversas alternativas de transporte público y en pleno auge de propuestas comerciales, culturales y gastronómicas.
VENTA DE UNIDADES A PRECIO FIJO EN USD. 30 PORCIENTO DE ANTICIPO Y 30 CUOTAS FIJAS EN USD.
ÚNICAS UNIDADES A PRECIO FIJO. CONSULTANOS SOBRE TODOS LOS DETALLES.
EDIFICIO EN CONSTRUCCIÓN. ENTREGA EN 24 MESES.
“LIVE IN DORREGO” . Cuenta con ingreso por Av Dorrego, tendrá unidades de 1-2-3 y 4 ambientes, distribuidas en 9 pisos, 2 niveles de amenities (piscina, SUM, gimnasio, solarium y terraza verde) en los pisos 9 y 10, tres niveles de cocheras en subsuelo y locales comerciales en PB sobre ambas avenidas. APTO PROFESIONAL.
Características Generales:
El Edificio, de estilo contemporáneo en situación de esquina, cuenta con un importante Hall de acceso previsto con cámaras de seguridad y locales comerciales en Planta baja.
Las cocheras se distribuyen en dos niveles de SS con acceso mediante monta autos.
Las plantas contienen unidades de 1, 2, 3 y 4 ambientes con balcones hacia el frente.
Palieres con 2 ascensores.
Amenities en Piso 9: Salón de usos múltiples, Gimnasio, terraza y sector de parrilla. Piscina y solárium con azotea verde en piso 10. Grupo electrógeno para Servicios Generales.
Características técnicas:
Paramentos Interiores y exteriores: Mampostería tradicional de ladrillos huecos.
Revestimientos: Pisos Paliers, cocinas y baños y revestimientos pared baños: Porcelanato
Hall de acceso: Mármol / Porcelanato.
Unidades (Estar comedor y dormitorios): Pisos símil madera vinílicos (Patagonia Flooring), zócalos de madera blancos.
Escalera de incendio: Alisado de cemento con narices metálicas terminación pintura color.
Balcones: Porcelanato
Terrazas: Deck símil madera PVC.
Instalaciones Sanitaria:
Agua fría y caliente central en materiales de primera calidad.
Artefactos sanitarios FERRUM o similar y griterías de pared o mesada F.V. o similar.
Bachas de losa blanca de apoyar o embutir según el diseño a definir.
Eléctricas:
Teléfono y Canalización para Video.
Portero Visor color.
Conexión para Aire Acondicionado en todos los ambientes principales.
Calefacción:
Por piso radiante eléctrico con regulación diferenciada por ambiente.
Terminaciones Interiores:
Paramentos y cielorrasos en yeso con buñas perimetrales.
Pintura al látex blanco en todos los ambientes.
Exteriores:
Pintura Látex Exterior (color a definir) / Hormigón visto.
Carpinterías
Exteriores:
De aluminio negro (opcional termo panel) Interiores:
Puertas mdf para pintar.
Frentes de placard: De paneles integrales en melamina, Interiores de placares y vestidores completos equipados.
Equipamiento fijo:
Muebles bajo mesada y alacenas diseñadas a medida. Horno y anafe separados de acero inoxidable eléctricos.
Mesadas y alzada de 30 cm en Granito negro Brasil o similar en cocinas con bachas de acero inoxidable y mesadas de mármol en baños y toilette.
Espejos y accesorios en baños y toilettes.
Herrajes platil de categoría.
Tenemos disponibilidad de otras unidades
Construye junto a INARCH + AG SERVICIOS SRL
CONSTRUCTORA & NEGOCIOS INMOBILIARIOS
*Nota: Dichas características podrán variar de acuerdo a la disponibilidad de mercado, respetando las características de diseño
Actualizado el día: 2025-11-28 17:37:10
Dirección
-
Dirección: Dorrego 1516
-
Ciudad: Palermo, Palermo Hollywood
-
Provincia: Capital Federal
-
Área: Palermo Hollywood
-
País: argentina
Detalles
Updated on November 28, 2025 at 2:37 pm-
ID de propiedad 4723941
-
Precio USD $128,411
-
Tamaño de la propiedad 34.00 M2
-
Dimensiones del terreno 38.80 M2
-
Habitación 1
-
Baño 1
-
Tipo de propiedad Departamento
-
Estado de la propiedad Venta




