Dorrego al 1500
  • USD $110,000

Vista general

ID de propiedad: 4632703
  • Departamento
  • Tipo de propiedad
  • 1
  • Baño
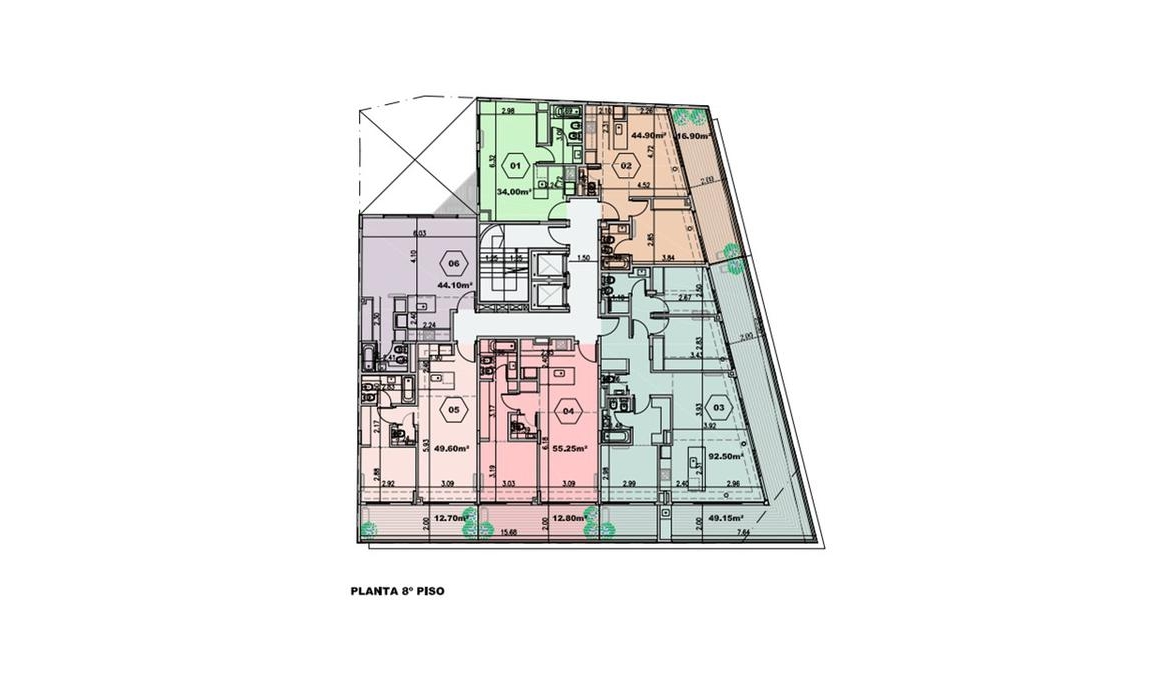
  • 34.00 M2
  • Dimensiones del terreno

Descripción

Venta Monoambiente 34M2

“LIVE IN DORREGO” es un proyecto que se ubica en la esquina de Av Dorrego y Av Córdoba, donde confluyen los barrios de Palermo, Colegiales y Chacarita. En pleno distrito audiovisual y con multiplicidad de propuestas comerciales, culturales y gastronómicas. Con ingreso por Av Dorrego, tendrá unidades de 1-2-3 y 4 ambientes, distribuidas en 9 pisos, 2 niveles de amenities (piscina, SUM, gimnasio, solarium y terraza verde) en los pisos 9 y 10, dos niveles de cocheras en subsuelo y locales comerciales en PB sobre ambas avenidas. APTO PROFESIONAL.

FINANCIAMIENTO!!
30% anticipo en usd el resto en cuotas fijas en USD o en pesos ajustados a CAC
ENTREGA EN 24 MESES

Unidad 201
Características Generales:
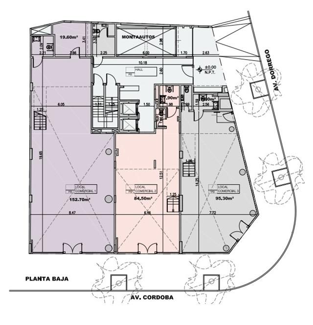
El Edificio, de estilo contemporáneo en situación de esquina, cuenta con un importante Hall de acceso previsto con cámaras de seguridad y locales comerciales en Planta baja.
Las cocheras se distribuyen en dos niveles de SS con acceso mediante monta autos.
Las plantas contienen unidades de 1, 2, 3 y 4 ambientes con balcones hacia el frente.
Palieres con 2 ascensores.

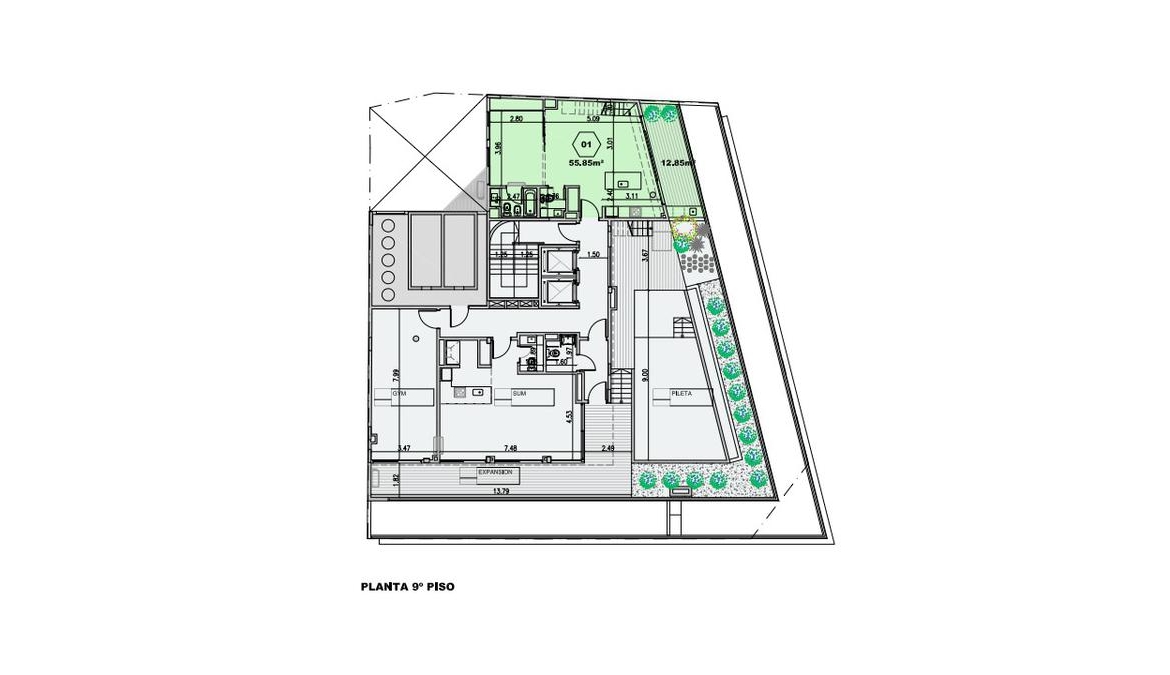
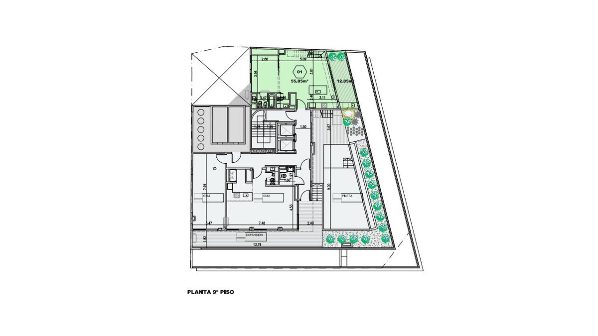
Amenities en Piso 9:
Salón de usos múltiples, Gimnasio, terraza y sector de parrilla. Piscina y solárium con azotea verde en piso 10. Grupo electrógeno para Servicios Generales.

Características técnicas:
Paramentos Interiores y exteriores: Mampostería tradicional de ladrillos huecos.
Revestimientos: Pisos Paliers, cocinas y baños y revestimientos pared baños: Porcelanato
Hall de acceso: Mármol / Porcelanato.
Unidades (Estar comedor y dormitorios): Pisos símil madera vinílicos (Patagonia Flooring), zócalos de madera blancos.
Escalera de incendio: Alisado de cemento con narices metálicas terminación pintura color.
Balcones: Porcelanato
Terrazas: Deck símil madera PVC.
Instalaciones Sanitaria:
Agua fría y caliente central en materiales de primera calidad.
Artefactos sanitarios FERRUM o similar y griterías de pared o mesada F.V. o similar.
Bachas de losa blanca de apoyar o embutir según el diseño a definir.
Eléctricas:
Teléfono y Canalización para Video.
Portero Visor color.
Conexión para Aire Acondicionado en todos los ambientes principales.
Calefacción:
Por piso radiante eléctrico con regulación diferenciada por ambiente.

Terminaciones
Interiores:Paramentos y cielorrasos en yeso con buñas perimetrales.
Pintura al látex blanco en todos los ambientes.
Exteriores:
Pintura Látex Exterior (color a definir) / Hormigón visto.
Carpinterías
Exteriores:
De aluminio negro (opcional termo panel) Interiores:
Puertas mdf para pintar.
Frentes de placard: De paneles integrales en melanina, Interiores de placares y vestidores completos equipados.

Equipamiento fijo
Muebles bajo mesada y alacenas diseñadas a medida. Horno y anafe separados de acero inoxidable eléctricos.
Mesadas y alzada de 30 cm en Granito negro Brasil o similar en cocinas con bachas de acero inoxidable y mesadas de mármol en baños y toilette.
Espejos y accesorios en baños y toilettes.
Herrajes platil de categoría.
Tenemos disponibilidad de otras unidades

Construye junto a INARCH + AG SERVICIOS SRL
CONSTRUCTORA & NEGOCIOS INMOBILIARIOS

*Nota: Dichas características podrán variar de acuerdo a la disponibilidad de mercado, respetando las características de diseño.

Actualizado el día: 2025-11-28 17:37:10

Dirección

  • Ciudad: Palermo, Palermo Hollywood
  • Provincia: Capital Federal
  • Área: Palermo Hollywood
  • País: argentina

Detalles

Updated on November 28, 2025 at 2:37 pm
  • ID de propiedad 4632703
  • Precio USD $110,000
  • Tamaño de la propiedad 34.00 M2
  • Dimensiones del terreno 34.00 M2
  • Habitación 1
  • Baño 1
  • Tipo de propiedad Departamento
  • Estado de la propiedad Venta

Información de contacto

Ver listados

Consultar por esta propiedad