Ministro Brin al 2824
- USD $110,260
- USD $110,260
Vista general
- Departamento
- 1
- 1
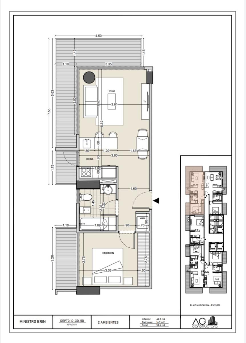
- 59.00 M2
Descripción
TORRE MINISTRO BRIN 2824.
TU ESTILO ELEVADO EN LANUS CENTRO
PISO 1D
Descubre la excelencia residencial en la torre Ministro Brin 2824, ubicada en el corazón de Lanús centro, entre las calles Aristóbulo del valle y Lavallol, con acceso desde dos calles principales: Ministro Brin y Doctor Melo.
CARACTERISTICAS PRINCIPALES DE LA UNIDAD:
*Cocina completa con muebles bajo mesada y alacenas, carpintería de primera calidad. Artefacto de cocina y horno empotrado, barra desayunadora.*Amplio balcón con barandas de acero y vidrio blindex.*Baño completo, con ventilación natural, totalmente revestido.*Habitación con placard empotrado, puertas de piso a techo.*Pisos de porcelanato en todos los ambientes.*Conexión para lavarropas.
PRINCIPALES CARACTERISTICAS EDILICIAS:
*Torre de 22 pisos, con diseño de perímetro libre para óptima iluminación y ventilación de todos los ambientes.
*Sky mirador en el piso 22, ofreciendo vistas panorámicas incomparables.
*Modernidad y Confort en cada detalle, garantizando una distribución ideal en todos los espacios.
*Zonas de esparcimiento de 1250M2 en un terreno de 1500M2, una exclusividad en la zona, en todos los espacios.
Amenidades de Primer Nivel.
* Amenities que incluyen SUM, salón de fiestas, gimnasio y piscina climatizada IN/OUT Door de 16 x 4 mtrs.
* Entorno natural y contacto directo con la naturaleza, proporcionando un ambiente sereno y armonioso para toda la familia.
* Deck solárium y espacios de juego para niños, complementando un estilo de vida equilibrado y activo.
Unidades funcionales de uno, dos, tres y cuatro ambientes.
Esta Torre representa una oportunidad única para aquellos que buscan una vida de lujo, comodidad y conexión con su entorno, todo en el corazón de Lanús Centro.
Descripción del emprendimiento
TORRE MINISTRO BRIN 2824. ***TU ESTILO ELEVADO EN LANUS CENTRO***
Descubre la excelencia residencial en la torre Ministro Brin 2824, ubicada en el corazón de Lanús centro, entre las calles Aristóbulo del valle y Lavallol, con acceso desde dos calles principales: Ministro Brin y Doctor Melo.
PRINCIPALES CARACTERISTICAS.
*Torre de 22 pisos, con diseño de perímetro libre para óptima iluminación y ventilación de todos los ambientes.
*Sky mirador en el piso 22, ofreciendo vistas panorámicas incomparables.
*Modernidad y Confort en cada detalle, garantizando una distribución ideal en todos los espacios.
*Zonas de esparcimiento de 1250M2 en un terreno de 1500M2, una exclusividad en la zona, en todos los espacios.
Amenidades de Primer Nivel.
* Amenities que incluyen SUM, salón de fiestas, gimnasio y piscina climatizada IN/OUT Door de 16 x 4 mtrs.
* Entorno natural y contacto directo con la naturaleza, proporcionando un ambiente sereno y armonioso para toda la familia.
* Deck solárium y espacios de juego para niños, complementando un estilo de vida equilibrado y activo.
Unidades funcionales de uno, dos, tres y cuatro ambientes.
Esta Torre representa una oportunidad única para aquellos que buscan una vida de lujo, comodidad y conexión con su entorno, todo en el corazón de Lanús Centro.
Actualizado el día: 2025-11-28 17:37:21
Dirección
-
Dirección: Ministro Brin 2824 Lanus Oeste
-
Ciudad: Lanús, Lanús Oeste
-
Provincia: G.B.A. Zona Sur
-
Área: Lanús
-
País: argentina
Detalles
Updated on November 28, 2025 at 2:37 pm-
ID de propiedad 6515122
-
Precio USD $110,260
-
Tamaño de la propiedad 42.00 M2
-
Dimensiones del terreno 59.00 M2
-
Dormitorio 1
-
Habitaciones 2
-
Baño 1
-
Tipo de propiedad Departamento
-
Estado de la propiedad Venta













